首页
写字楼出租
共享办公
委托找房
×
15801156781
首页
>
写字楼出租
>
朝阳
>
CBD
>
IFC财源国际中心
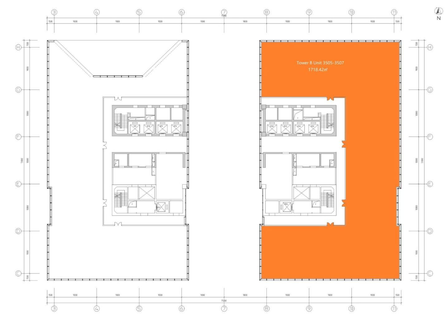
IFC财源国际中心 · 1708㎡
周边商务氛围好
地铁10分钟
LEED认证
预览
预览
预览
预览
预览
预览
预览
预览
519517
元/月
10
元/㎡*天
房源单价
1708
㎡
房源面积
可注册
工商注册
地址:
建国门外大街8号
付款方式:
押3付3
最短租期:
36个月
装修情况:
精装修
分割:
可分割
7x24小时 专属顾问
15801156781
拨打电话时,请告知在办公网上看到
IFC财源国际中心下其他房源
精装修
645㎡
可注册
10
元/㎡*天
精装修
200㎡
可注册
10
元/㎡*天
精装修
1167㎡
可注册
11
元/㎡*天
豪华装修
575㎡
可注册
11
元/㎡*天
精装修
700㎡
可注册
11
元/㎡*天
精装修
827㎡
可注册
11
元/㎡*天
热门办公大厦
三才堂大厦
写字楼出租-海淀
7
元/㎡*天
环洋大厦
海淀-西二旗
4
元/㎡*天
银谷大厦
海淀-五道口
4-6
元/㎡*天
清华科技园
海淀-五道口
6-8
元/㎡*天
清华同方科技广场
海淀-五道口
5-6
元/㎡*天
委托找房
请在浏览器中启用JavaScript来完成此表单。
手机号
*
多选按钮
*
授权并同意《个人信息与隐私保护条款》
即刻预约带看
专业选址,找房无忧
Copyright © 2023 北京万运工贸有限责任公司 版权所有
备案号:京ICP备2023014015号-1
点击咨询
15801156781
×
扫一扫与我们联系