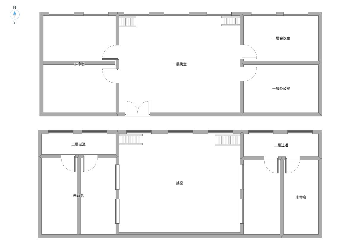
恒通国际商务园 · 363㎡
地标建筑
地铁枢纽
高绿化率
预览
预览
预览
预览
预览
预览
预览
预览
预览
预览
预览
77289元/月
7元/㎡*天
房源单价
363
房源面积
可注册
工商注册
地址:
北京朝阳区酒仙桥路10号
付款方式:
押3付3
最短租期:
24个月
装修情况:
精装修
分割:
不可分割
7x24小时 专属顾问
15801156781
拨打电话时,请告知在办公网上看到
×
扫一扫与我们联系