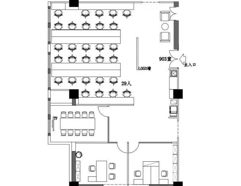
百环大厦 · 293㎡
双地铁直达
车位充足
楼盘品质高
预览
预览
预览
预览
预览
预览
预览
预览
预览
预览
预览
62385元/月
7元/㎡*天
房源单价
293
房源面积
可注册
工商注册
地址:
广渠路66号
付款方式:
押3付3
最短租期:
12个月
装修情况:
精装修
分割:
不可分割
7x24小时 专属顾问
15801156781
拨打电话时,请告知在办公网上看到
×
扫一扫与我们联系